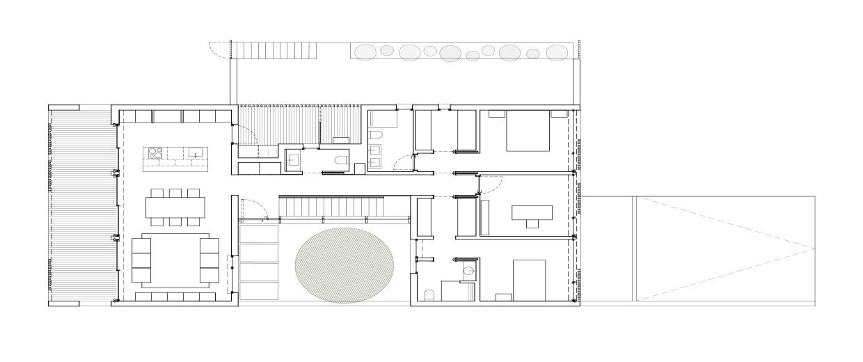
La parcela presentaba una geometría singular —con 50 metros de profundidad frente a solo 16 de fachada— que requería una implantación cuidadosamente estudiada. Se analizaron distintas configuraciones hasta encontrar una solución que maximizara la orientación, la privacidad respecto a los colindantes y el aprovechamiento de la luz natural.
Optamos por una organización en pabellones dispuestos perpendicularmente al eje longitudinal de la parcela. Esta estrategia permitió abrir patios intermedios que actúan como filtros espaciales y lumínicos, generando una secuencia fluida entre los volúmenes habitables. Estos patios no solo garantizan iluminación natural cruzada, sino que ofrecen conexiones diagonales —visuales y físicas— que amplifican la percepción del espacio, diluyendo los límites entre interior y exterior.
Con ese mismo objetivo, se diseñaron grandes aperturas acristaladas tanto en las fachadas principales como en los patios, favoreciendo una fusión franca entre la arquitectura y el paisaje. La distribución interior es limpia, abierta y flexible. Cada estancia ha sido dispuesta de forma estratégica para asegurar una óptima orientación solar, ventilación natural y comunicación directa con los espacios exteriores.
Desde el punto de vista constructivo, la vivienda se articula mediante dos sistemas materiales que reflejan su organización funcional. La planta semienterrada, que alberga el garaje, instalaciones y zonas de servicio, se resuelve con hormigón visto, anclando visual y estructuralmente la vivienda al terreno. Sobre este basamento se eleva el volumen principal, destinado a la vida diurna, con una envolvente continua de acabado blanco. Este revestimiento, más abstracto y liviano, acentúa los juegos de luz y sombra proyectados por porches, celosías y elementos de control solar, aportando profundidad, movimiento y carácter a la composición.
El resultado es una arquitectura residencial contemporánea que responde con precisión al lugar, combinando funcionalidad, claridad espacial y una estética sobria, donde cada decisión constructiva y formal refuerza la intención de vivir la casa en estrecho vínculo con la luz, el clima y el paisaje mediterráneo.
Godella, Valencia l España
Arquitectos Francesc de Paula García Martínez, Ana Gil Collado y Francisco Miravete Martín
Colaboradores Héctor Bleda Magaña, Martin Ortolá Sabater.
Arquitecto Técnico (Dicotec S.L) Eduardo Ferrer Domenech, Pablo Lluch Alcón
Fotógrafo Diego Opazo












